中古一戸建て

津市白塚町

物件概要

所在地 津市白塚町 価格 450万円
交通

名古屋線 白塚駅 まで 徒歩13分

土地権利 所有権
小学校区 白塚 (265m) 中学校区 一身田 (3120m)
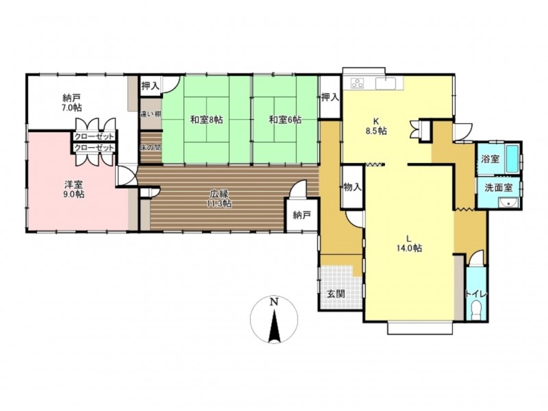
間取り 3SLDK 築年数 1965年(昭和40)5月
土地面積 公簿 515.21㎡(155.85坪) 建物面積 122.34㎡ (37.00坪)
地目 宅地 私道負担
都市計画 市街化区域 建築確認番号
用途地域 1種住居 用途地域2
建ぺい率 60% 容積率 160%
上水道 公共 下水道 公共
ガス 現況
構造 木造 駐車場
取引態様 仲介 明渡 即時
設備・条件
備考 ※床面積は、未登記増築部分を含む

【更新年月日】2026年01月07日
【次回更新予定日】2026年02月07日

不動産用語集

弊社では、売主様に配慮し、物件所在地を掲載していない物件がございます。
詳細については、お気軽にお問合せください。

(物件番号: 3000709)

周辺地図を確認する

LOGIN 会員ログイン

メールアドレス
パスワード

パスワードを忘れた方はこちら

SEARCH 物件検索

種別を選択

エリアを選択

価格を選択



こだわり検索

津市の不動産売買情報

HPを見たと言って、お気軽にお問い合わせください
  • 本店0120-025-445

営業時間 : 9:00~18:00

HARMONY不動産
〒514-0815 三重県津市藤方1036番1

定休日 : 水曜日・木曜日